
As of the 2017.k version, the interface of IFC Builder has been improved. This new feature consists of an aesthetic and functional improvement, where the toolbar of the program has been adapted to the new screen resolutions.
This new format favours the “usability” of the program due to its options being organised in categories (project, architecture, equipment, edit and results) which aids with the workflow and favours productivity in the modelling process.
As occurred in the previous version (2017.j) with the interfaces of CYPETHERM HVAC and StruBIM Foundations, the menu options that contain several tools, display their options in floating menus. For IFC Builder, these menus contain two viewing options, which are selected alternately by clicking on the icon
located to the left of their heading:
The floating menus can be pinned to the screen by selecting the icon
located to the right of the heading (
Pinned,
unpinned), and this way do not disappear when another tool group is selected or the program is re-entered. They can also be adhered to the sides of the working space to become toolbars (see the Floating toolbars section of the new features of the 2017.j version).
The colours and textures of the 3D view have been redefined and adapted to the specification detail of the geometric model.
As of the 2017.k version, AcoubatBIM by CYPE allows users to introduce external claddings for the roof and façade types, as was done in previous versions for partitions and floor slabs. Thanks to this implementation, ETICS insulation systems can now be introduced in the construction solutions used in the building.
The following examples have been added:
The group “Absorbent layers” has been added to the program library. This way, users can include 2D absorption elements in the project model. These, as occurs with furniture, are not taken into account in the sound insulation calculations and only affect the prediction of the reverberation level inside the space in which they are installed.
Since the types of absorbent layers are characterised by their sound absorption coefficient (α), they must be associated with the internal or external side of the partition.
A summary document has been created containing the results of the global acoustic indices obtained for each space, together with the limit values established by users. Similarly, users can configure the elements to be displayed and only show spaces that do not meet all the requirements or values obtained for each separator or connection.
As of the 2017.k version of CYPEFIRE Sprinklers, risers can be used as vertical connections between pipes of different floors.
For this initial implementation, it is only possible to use risers if users link their project to a BIM model (even if the connection with the model is not maintained and only its 3D geometry is conserved). This feature will be further developed in future versions, where it will be possible to introduce risers without requiring the connection with the BIM model and users will have a palette of options regarding their definition, such as being able to introduce sloped risers.
Risers are located in the “Pipes” menu. Users must define the reference, material and size to be used. Once the riser has been introduced on the floor plan, it will be displayed in a lighter colour (transparent layer) on the other floors. The riser has to be introduced on all the floor plans where it will be connected to horizontal pipes. When it is introduced on other floors, it is displayed in a darker colour (the same way as occurs on the floor plan where it was first introduced).
Risers are also included in the reports and are clearly identified in the nodes lists with the reference: “Riser node”.
The 2017.k version includes a new type of sprinkler: ESFR (Early Suppression Fast Response).
The main properties of this sprinkler are its fast response and its discharge factor, K, which is greater than 11.2 gpm/psi1/2 (160 lpm/bar1/2). It is known for its great capacity to suppress fire and its use in high risk zones. These sprinklers are usually used to avoid having to include In-Rack sprinklers in the installations.
The 2017.k version of CYPEFIRE Sprinklers includes racks, an important element when designing a sprinkler system.
The racks pose a challenge for designers because the type of installation to be executed depends on their geometry and what they store.
In this version, users define the height of the racks and their geometry on plan, which will then be used by the program to carry out the necessary checks on the ESFR sprinklers. More information on the racks can be implemented in future versions, such as the type of material that is stored (Class I to IV, rubber tyres, etc.) the geometry of the rack (solid shelving, palletized racks, portable racks, etc.) and the introduction of sprinklers at each level of the rack (In-Rack sprinklers).
As occurs in CYPEFIRE CTE, the Edit section of the bar menu displays its elements in a floating menu which can be viewed in three different ways:
The floating menu can be pinned on screen so that the options remain visible when others are being used. It can also be placed to the side of the workspace so it resembles a toolbar.
This type of menu is the same as that which was implemented in the 2017.j version for CYPETHERM HVAC and StruBIM foundations (see the Floating tools section of the new features of the 2017.j version) and in this version (2017.k) for IFC Builder.
Additionally, the following tools have been added to this menu for CYPEFIRE Sprinklers:
Assign
Measure lengths on plan
Move tag
Show/hide tag
Tag line
Insert textThe EnergyPlusTM analysis engine has been updated in the 2017.k version in all CYPE programs that use it: CYPECAD MEP, CYPETHERM HE Plus, CYPETHERM EPlus and CYPETHERM RECS Plus. This way, all CYPE programs will now use the latest available version of the analysis motor of the US Department of Energy (DOE); version 8.7, published on 31st March 2017.
Toshiba VRF systems have been implemented in the catalogue selection of variable refrigerant flow systems. As well as being able to define the properties of a “generic” VRF system, as up to now, users can choose amongst the Toshiba models that are completely defined in the program.
In the Terminal unit window (see image), when the Variable refrigerant flow (VRF) option is selected, users can choose indoor Toshiba units by type and model. Their main catalogue properties are displayed.
Similarly, outdoor units can be found in the Variable refrigerant flow (VRF) tab of the Systems window.
When a discharge grille is introduced (Ducts > Straight duct), a snap point appears on the indoor VRF units with duct distributions on the current floor.
This point is the starting point of the discharge duct that joins the indoor unit with the rooms it provides air to. This way, the program automatically distributes the loads of those rooms and the air flow moved by the unit, between the grilles and diffusers of the discharge duct.
The configuration of the return position is defined directly in the panel of the indoor unit. There are two possible return positions:
Fittings (elbows, transitions and splits) appear in the duct lists (“Type” column) with their ASHRAE reference. This data allows for the element to be identified more clearly.
The “Cooling systems” button has been included in the “Drawing settings” dialogue box, which allows users to activate the reference, type and model of the indoor and outdoor VRF system units and TOSHIBA Estia units, to then display this information on floor plans.
The 2017.k version includes the “Ventilation flow” for each room. As occurs with loads, this data can come from the BIM connection with CYPETHERM LOADS or defined manually in the program by users.
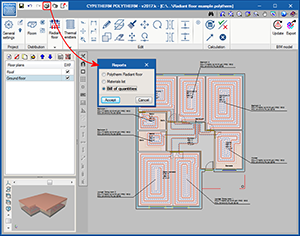
The 2017.k version of CYPETHERM HVAC and CYPETHERM Polytherm contain the bill of quantities which includes the Polytherm products used in the design of the installation. This way, as well as the program providing a complete report of the results of the installation designed with Polytherm, the programs incorporate a detailed bill of quantities of the Polytherm radiant floor, with images, descriptions, prices and quantities of all the products.
As of the 2017.k version, CYPETHERM HVAC and CYPETHERM Polytherm incorporate a new tool to edit radiant floor circuits, which users can use to modify the paths that are generated automatically by the program.
When the right mouse button is pressed when the cursor is positioned over an element of the installation, or over the limits of a room, a contextual menu appears containing options to edit or delete the selected element, or consult results when applicable (e.g. of ducts).