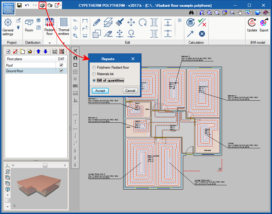
CYPETHERM HVAC. Radiant floor. Bill of quantities for Polytherm products
©CYPE Ingenieros - Av. de Loring, 4 - 03003 ALICANTE. Spain
Tel. USA (+1) 202 569 8902 // UK (+44) 20 3608 1448 // Spain (+34) 965 922 550 - Fax (+34) 965 124 950
Home | CYPE | Legal Aspects | Products | Versions | Downloads | Contact us
Bulgarian | French | Italian | Portuguese | Spanish | Spanish (Mexico) | Other dealerships